Creative Energy Homes

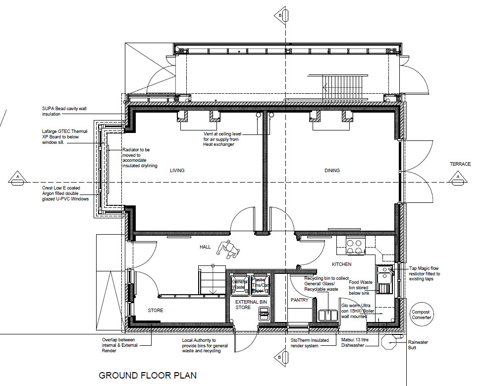
The aim of this project is to redevelop a typical 1930s semi-detached house to comply with the zero-carbon targets proposed for all new homes built from 2016 onwards.

From the 1930s to 1960s there was a large house build program in the UK. These houses currently make up around 60% of the UK housing stock. It is estimated that around 20% of UK CO2 emissions derives from domestic housing stock so clearly there is a large opportunity to reduce UK carbon emissions by retrofitting these homes and increasing their overall efficiency.
EON House 

E.ON 2016
Research House

 
 

Key factors driving the E-ON house project:

  • Each year the average household in the UK emits enough CO2 to fill six hot air balloons 10 metres in diameter.
  • There is an urgent need for affordable routes for existing home owners to reduce their energy consumption and adapt their properties to meet sustainable contemporary lifestyles
  • To significantly reduce overall CO2 emissions, existing homes will also need to move towards the Government’s target of zero carbon emissions from new properties after 2016.

Partners

EON-Logo

Gallery

eon_rear_june08

eon_rear_june08
Uploaded
Oct 11, 2011

ResearchPrintScreenUbisense

ResearchPrintScreenUbisense
Uploaded
Oct 11, 2011

013MasterSeqDB236

013MasterSeqDB236
Uploaded
Oct 11, 2011

eon_rear_sept08

eon_rear_sept08
Uploaded
Oct 11, 2011

See the full gallery

 

 

 

Documentation

Please click below documents for more information about the E.ON House

Creative Energy Homes

The Department of Architecture and Built Environment
Lenton Firs House
University Park
Nottingham, NG7 2RD



telephone: +44 (0)115 82 32502