15. Local fire procedures
Select any building to view each specific fire procedure.
Queen's Medical Center - University Hospital
Fire alarm |
Intermittent - Single toneContinuous - Two Tone |
Is a continuous siren - Tested on Thursday mornings. | ![]() |
Raising the alarm |
The System is automatic with a detector in each room. If you locate a fire or smell smoke and the alarm is not sounding you must raise the alarm by breaking the glass of the nearest fire alarm call point. Break Glass |
![]() |
|
Passing on Information |
Exact details of the fire MUST be reported to the QMC Switchboard, giving details of the location and nature of the fire. This is very important if a false alarm has been triggered. Dial 2222 |
![]() |
|
Hearing the alarm |
The fire alarm is a two-stage system that will give a two warning systems and a precise location on the fire panel. The QMC fire team and individuals from each area will check the fire panels located in each zone. Intermittent – Single Tone – Stay where you are. Continuous – Two Tone – Alarm triggered in your zone, await instruction from fire warden or if fire detected follow evacuation procedure. |
![]() |
|
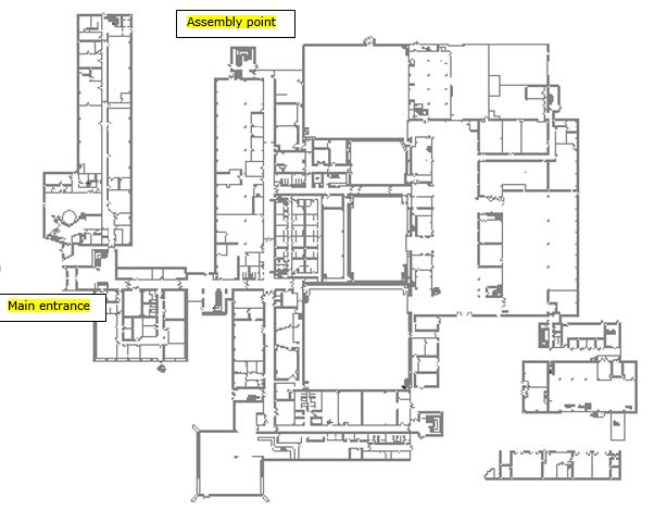
Evacuation Procedure |
If the fire is found or you are instructed to leave by the fire team, you should move horizontally to the next fire zone, into a different block in QMC, or into the Medical School.
|
View enlarged plan |
|
Fire Fighting |
If in doubt get out!Only tackle the fire if it is safe to do so, and you have been trained. |
![]() |
|
Medical School - University Hospital
Fire alarm |
Intermittent - Single ToneContinuous - Two ToneIs tested on Wednesday mornings. |
|
|
Raising the alarm |
The System is automatic with a detector in each room. If you locate a fire or smell smoke and the alarm is not sounding you must raise the alarm by breaking the glass of the nearest fire alarm call point. Break Glass |
|
|
Passing on Information |
Exact details of the fire MUST be reported to the QMC Switchboard, giving details of the location and nature of the fire. This is very important if a false alarm has been triggered. Dial 2222 |
|
|
Hearing the Alarm |
The fire alarm is a two-stage system that will give a two warning systems and a precise location on the fire panel. Fire wardens on each floor will check the fire panels that are located in the lift lobbies and next to the porters lodge. Intermittent – Single Tone – Stay where you are. Continuous – Two Tone – Alarm triggered in your zone, await instruction from fire warden or if fire detected follow evacuation procedure. |
View enlarged plan |
|
Evacuation Procedure |
If the fire is found or you are instructed to leave by the fire wardens, you should move horizontally to the next fire zone, into QMC, over the bridge to the University or into the Medical School car park depending on the floor. |
|
|
Fire Fighting |
If in doubt get out!Only tackle the fire if it is safe to do so, and you have been trained. |
![]() |
|
Tower building - University park
Fire alarm |
Is a continuous siren - Tested on Wednesday mornings. |
|
|
Raising the alarm |
Smoke and heat detectors automatically trigger the fire alarm. If you locate a fire or smell smoke you must raise the alarm by breaking the glass of the nearest fire alarm call point. Break Glass |
|
|
Passing on Information |
If the alarm is triggered in error (toaster, microwave etc.) you must call security to alert them, giving specific details of what has triggered the alarm. Dial 8888Mobile: 0115 951 8888 |
|
|
Hearing the alarmToken system |
Pick up the fire token and check the floor, informing individuals to leave immediately by the nearest exit. Take the token to the assembly point and give it to the assembly point officer wearing the high visibility yellow jacket. |
![]() |
|
Evacuation Procedure |
Evacuate the building by the nearest exit, closing all doors behind you. Do NOT use the lifts or stop to collect personal belongings. Proceed to the assembly point located at the front of the building using stairs on either side of the building. The designated Fire officer or Emergency Services Coordinator will instruct you when it is safe to re-enter the building.
|
View enlarged plan |
|
Refuge areasFor individuals requiring assistance |
If you are unable to leave the building using the stairs there is a refuge area on each floor, in the central core area either next the lift or on the opposite side depending on the floor. You should use the phone to contact the university security and request assistance, you will need to tell them which refuge point you are at.
|
View enlarged plan |
|
Fire Fighting |
If in doubt get out!Only tackle the fire if it is safe to do so, and you have been trained. |
![]() |
|
Maternity building - City hospital
Fire alarm |
Intermittent - Single toneContinuous - Two toneIs tested Tuesday mornings |
|
|
Raising the alarm |
Smoke and heat detectors automatically trigger the fire alarm. If you locate a fire or smell smoke you must raise the alarm by breaking the glass of the nearest fire alarm call point. Break Glass |
|
|
Passing on Information |
Exact details of the fire MUST be reported to the QMC Switchboard, giving details of the location and nature of the fire. This is very important if a false alarm has been triggered. Dial: 2222 |
|
|
Hearing the Alarm |
The fire alarm is a two-stage system that will give a two warning systems and a precise location on the fire panel. A designated individual will check the fire panel located on the ground floor next to reception and inform staff the location of the fire. Intermittent – Single Tone – Stay where you are. Continuous – Two Tone – Alarm triggered in your zone, await instruction from fire warden or if fire detected follow evacuation procedure. |
|
|
Evacuation Procedure |
Evacuate the building by the nearest exit, closing all doors behind you. Front stairs or lift? Rear loading bay at lower floor. Do NOT use the lifts or stop to collect personal belongings. Proceed to the assembly point located at the front of the building. (See Fig 1). The designated Fire Officer or Emergency Services Coordinator will instruct you when it is safe to re-enter the building.
|
(Fig 1), view enlarged image. |
|
For individuals requiring assistance |
If you are unable to use the stairs during an evacuation you should follow the corridor around to right past the lifts until you reach the loading bay at the rear of the building onto north road. Rear staircase. This is a 60 minute compartment down to the floor below and does require an evacuation aid which we will address. If this stairs used for mobility are impaired, currently it is important that someone remains in the refuge and that the fire teams are alerted. You should then proceed to the assembly point at the front of the building. |
||
Fire Fighting |
If in doubt get out!Only tackle the fire if it is safe to do so, and you have been trained. |
![]() |
|
South entrance - City Hospital
Fire alarm |
Intermittent - Single toneContinuous - Two ToneIs a continuous siren - Tested on Thursday mornings. |
![]() |
|
Raising the alarm |
Smoke and Heat detectors automatically trigger the fire alarm. If you locate a fire or smell smoke you must raise the alarm by breaking the glass of the nearest fire alarm call point. Break Glass |
|
|
Passing on Information |
Exact details of the fire MUST be reported to the QMC Switchboard, giving details of the location and nature of the fire/fire alarm. This is very important whether a false alarm has been triggered or a smell of smoke/fire is present. It ensures an accurate Trust and Fire Service attendance. Dial 2222 |
![]() |
|
Hearing the alarm |
The fire alarm is a two-stage system that will give a two warning systems and a precise location on the fire panel. The CHC fire team and individuals from each area will check the fire panels located in each zone. These are 32/64 character fixed displays. Intermittent – Single Tone – Full alarm in a neighbouring zone. Stay where you are and monitor the situation and follow the advice of the Trust Fire Response Team. Continuous – Two Tone – Alarm triggered in your zone, await instruction from fire warden or if fire detected follow evacuation procedure. |
![]() |
|
Evacuation Procedure |
Evacuate the building by the nearest exit, closing all doors behind you. Do NOT use the lifts or stop to collect personal belongings. Proceed to the assembly point located in the main lift lobby, unless you are directed to leave the building by the emergency services, then you should assemble in the car park at the South Entrance on the lower ground floor. If you are unable to use the stairs, horizontal evacuation into sub compartments of the corridor allows you access to the 60 minute lift lobby refuges, the lifts are available to the fire services allowing vertical evacuation, (You must not travel in the lift without the permission of the fire service/team). There is also horizontal evacuation to Giles ward / Oncology Day case, where vertical evacuation is also available. The designated Fire Officer or Emergency Services Coordinator will instruct you when it is safe to re entre the building. ![]() |
View enlarged map ![]() View enlarged plan |
|
Fire Fighting |
If in doubt get out!Only tackle the fire if it is safe to do so, and you have been trained. |
|
|
Clinical Sciences building (CSB)
Fire alarm |
Is a continuous sirenTested on Wednesday mornings. |
|
|
Raising the alarm |
Smoke and Heat detectors automatically trigger the fire alarm. If you locate a fire or smell smoke you must raise the alarm by breaking the glass of the nearest fire alarm call point. Break Glass |
|
|
Passing on Information |
Exact details of the fire MUST be reported to University security, giving details of the location and nature of the fire.. This is very important whether a false alarm has been triggered. Dial 8888Mobile 0115 951 8888 |
![]() |
|
Hearing the alarm |
Token SystemFire tokens are located in each fire zone, (between fire doors), a plan showing details of each floor is located next to each fire token, along with a building plan in the main entrance of CSB 1. Pick up the fire token and check the areas listed on the token map. Take the token to the Safety Officer (high visibility jacket) at the evacuation point. View fire token |
|
|
Evacuation Procedure |
Evacuate the building by the nearest exit, closing all doors behind you. Do NOT use the lifts or stop to collect personal belongings. Proceed to the assembly point located at the front of the building. The designated Fire Officer or Emergency Services Coordinator will instruct you when it is safe to re-enter the building. ![]() |
|
|
Refuge areasFor individuals requiring assistance |
If you are unable to leave the building using the stairs there is a refuge area on each floor, in the central core area either next the lift or on the opposite side depending on the floor. You should use the phone to contact the university security and request assistance, you will need to tell them which refuge point you are at.
Green refuges do not have an evacuation chair. Yellow refuges have an evacuation chair. |
View enlarged plan. ![]() View enlarged plan. |
|
Fire Fighting |
If in doubt get out!Only tackle the fire if it is safe to do so, and you have been trained. |
![]() |
|
Hearing sciences building - University park
Fire alarm |
Is a continuous siren.Is tested on Friday mornings. |
|
|
Raising the alarm |
If you locate a fire or smell smoke you must raise the alarm by breaking the glass of the nearest fire alarm call point. Break Glass |
|
|
Passing on Information |
Exact details of the fire MUST be reported to University security, giving details of the location and nature of the fire. This is very important if a false alarm has been triggered. Dial: 8888Mobile: 0115 951 8888 |
![]() |
|
On hearing the Alarm |
Evacuate the building by the nearest exit, closing all doors behind you. Do NOT use the lifts or stop to collect personal belongings. |
![]() |
|
Evacuation Procedure |
Proceed to the assembly point located on the grass at the rear of the Psychology building. The designated Fire warden or Emergency Coordinator will instruct you when it is safe to re-enter the building. |
![]() View enlarged plan |
|
Fire Fighting |
If in doubt get out!Only tackle the fire if it is safe to do so, and you have been trained. |
![]() |
|
Center of Biomolecular Sciences building - University park
Fire alarm |
Is a continuous siren.Is tested on Wednesday mornings at 11.45am. |
![]() |
|
Raising the alarm |
Smoke and Heat detectors automatically trigger the fire alarm. If you locate a fire or smell smoke you must raise the alarm by breaking the glass of the nearest fire alarm call point. Break Glass |
|
|
Passing on Information |
If the alarm is triggered in error (toaster, microwave etc.) you must call security to alert them, giving specific details of what has triggered the alarm. This is very important if a false alarm has been triggered. Dial: 8888Mobile: 0115 951 8888 |
![]() |
|
On hearing the AlarmToken system |
Pick up the fire token and check the floor, informing individuals to leave immediately by the nearest exit. Take the token to the assembly point and give it to the assembly point officer, who will be wearing a high visibility yellow jacket. |
![]() |
|
Evacuation Procedure |
Evacuate the building by the nearest exit, closing all doors and windows behind you. Do NOT use the lifts or stop to collect personal belongings. Proceed to the assembly point located at the front of the boots building. The designated Fire Officer or Emergency Services Coordinator will instruct you when it is safe to Re-enter the building. |
View enlarged plan |
|
Refuge AreasFor individuals requiring assistance |
If you are unable to leave the building using the stairs there is a refuge area on each floor. You should use the phone to contact university security and request assistance, you will need to tell them which refuge point you are at. |
![]() |
|
Fire Fighting |
If in doubt get out!Only tackle the fire if it is safe to do so, and you have been trained. |
![]() |
|
Institute of mental health (IMH) - Jubilee campus
Fire Alarm |
Is a continuous siren.Tested on Monday mornings. |
|
||
Raising the alarm |
Smoke and heat detectors automatically trigger the fire alarm. If you locate a fire or smell smoke you must raise the alarm by breaking the glass of the nearest fire alarm call point. |
|
||
Passing on Information |
If the alarm is triggered in error (toaster, microwave etc.), you must call security to alert them, giving specific details of what has triggered the alarm. There is a panel in the IMH reception that identifies exactly where the alarm has been triggered, this is used to inform the emergency services of the location of the fire. Dial: 8888Mobile: 01159518888 |
|
||
Evacuation Procedure |
Evacuate the building by the nearest exit, closing all doors behind you. Do NOT use the lifts or stop to collect personal belongings. Proceed to the assembly point located outside the Jubilee Sports Centre / Starbucks in the pedestrian area. The designated fire officer or emergency services coordinator will instruct you when it is safe to re-enter the building.
|
View enlarged map |
||
Refuge areasFor individuals requiring assistance |
You should use the phone to contact the university security and request assistance, you will need to tell them which refuge point you are at. |
![]() View enlarged map |
||
Fire Fighting |
If in doubt get out!Only tackle the fire if it is safe to do so and you have been trained. |
![]() |
||
Yang Fujia building - Jubilee campus
Fire alarm |
Is a continuous siren - Tested on Wednesday mornings. |
|
|
Raising the alarm |
Smoke and Heat detectors automatically trigger the fire alarm, and details are sent to the fire panel giving the fire service the exact location of the fire. If you locate a fire or smell smoke you must raise the alarm by breaking the glass of the nearest fire alarm call point. Break Glass |
|
|
Passing on Information |
If the alarm is triggered in error (toaster, microwave etc.) you must call security to alert them, giving specific details of what has triggered the alarm. Dial 8888Mobile: 0115 951 8888 |
|
|
Hearing the alarmToken system |
The first person to leave should pick up the high visibility jacket and token board from the front of the building at the Triumph road entrance, and proceed to the evacuation point. Pick up the fire token and check the floor area associated with that token, informing individuals to leave immediately by the nearest exit. Take the token to the assembly point and give it to the assembly point officer wearing the high visibility yellow jacket. |
![]() |
|
Evacuation Procedure |
Evacuate the building by the nearest exit, closing all doors behind you. Do NOT use the lifts or stop to collect personal belongings. Proceed to the assembly point located on the grass outside the front of the Business School South. The designated Fire Officer or Emergency Services Coordinator will instruct you when it is safe to re-enter the building. ![]() |
![]() View enlarged plan |
|
Refuge areasFor individuals requiring assistance![]() |
If you are unable to leave the building using the stairs there is a refuge area on each floor in the stair well, with an evacuation chair available on C and E floor. You should use the phone to contact the University Security and request assistance, you will need to tell them which refuge point you are at.
|
![]() View enlarged plan. |
|
Fire Fighting |
If in doubt get out!Only tackle the fire if it is safe to do so, and you have been trained. |
![]() |
|
The Royal Derby hospital
Fire alarm |
Is a continuous siren.Is tested on Tuesday mornings. |
|
|
Raising the alarm |
Smoke and heat detectors automatically trigger the fire alarm. If you smell smoke you must raise the alarm by breaking the glass of the nearest fire alarm call point. Break Glass |
|
|
Passing on Information |
Exact details of the fire MUST be reported to University security, giving details of the location and nature of the fire. This is very important if a false alarm has been triggered. Dial: 8888Mobile: 0115 951 8888 |
|
|
Hearing the Alarm |
Pick up the fire token and check the floor, informing individuals to leave immediately by the nearest exit. Take fire token to assembly point, give token to Evacuation (yellow jacket) or Emergency Services Coordinator. |
![]() |
|
Evacuation Procedure |
Evacuate the building by the nearest exit, closing all doors behind you. Do NOT use the lifts or stop to collect personal belongings. Proceed to the assembly point beyond the Main Entrance car park outside. The Evacuation (yellow jacket) or Emergency Services Coordinator will instruct you when it is safe to re-enter the building.
|
View enlarged plan |
|
Fire Fighting |
If in doubt get out!Only tackle the fire if it is safe to do so, and you have been trained. |
![]() |
|
Kings meadow campus - (KMC)
Fire alarm |
Is a continuous siren - Tested on Friday mornings. |
|
|
Raising the alarm |
If you locate a fire or smell smoke you must raise the alarm by breaking the glass of the nearest fire alarm call point. Break glass |
|
|
Passing on Information |
Exact details of the fire MUST be reported to University security, giving details of the location and nature of the fire. This is very important if a false alarm has been triggered. Dial 8888Mobile: 0115 951 8888 |
|
|
On hearing the Alarm |
Evacuate the building by the nearest exit, closing all doors behind you. Do NOT use the lifts or stop to collect personal belongings. |
![]() |
|
Evacuation Procedure |
Proceed to the assembly point located at the rear of the building. The designated Fire Officer or Emergency Services Coordinator will instruct you when it is safe to re entre the building. |
Click to view |
|
Fire Fighting |
If in doubt get out!Only tackle the fire if it is safe to do so, and you have been trained. |
![]() |
|
Ropewalk House - Nottingham city center
Fire alarm |
Intermittent - Single toneContinuous - Two toneTested on Thursday mornings. |
|
|
Raising the alarm |
The System is automatic with a detector in each room. If you locate a fire or smell smoke and the alarm is not sounding you must raise the alarm by breaking the glass of the nearest fire alarm call point. Break Glass |
|
|
Passing on Information |
Exact details of the fire MUST be reported to the QMC Switchboard, giving details of the location and nature of the fire. This is very important if a false alarm has been triggered or a smell of smoke/fire is present. It ensures an accurate Trust and Fire Service attendance. Dial 2222Mobile: 0115 951 2222 |
|
|
Hearing the alarm |
The fire alarm is a two-stage system that will give a two warning systems and a precise location on the fire panel. The fire panel is located at the main entrance of Rope Walk house, and accessed by the building manager or Bronze command. Intermittent – Single Tone – Stay where you are! Continuous – Two Tone – Alarm triggered in your zone, await instruction from fire warden or if fire detected follow evacuation procedure. |
||
Evacuation Procedure
|
Upon hearing the alarm or you are instructed to leave by the fire team, you should leave the building immediately by the nearest exit and meet at the designated meeting place opposite the main entrance on the Rope Walk on the other side of the road. Do not re-enter the building until instructed to by a Fire Warden. Do not use the lift. |
View enlarged plan |
|
Refuge areasFor individuals requiring assistance |
If you are unable to leave the building using the stairs there is a refuge area adjacent to the lifts. Please inform a member of staff if you have limited mobility they will let the fire warden on reception know that you are in the building. A fire warden will notify NUHT bronze command who will then notify the fire and rescue service who will then safely move the individual out of the building. |
||
Fire Fighting |
If in doubt get out!Only tackle the fire if it is safe to do so, and you have been trained. |
![]() |
|









View enlarged map




















