Triangle

 

Reviving Timber Traditions and Community Life in Coventry.

 

Joan Borrell Ribas

Joan is a third-year student whose architectural approach integrates lessons from the past with responses to current and future challenges. He addresses the climate crisis while creating a sense of place, utilizing local materials whenever possible. His design process emphasises model making and iterative testing, reflecting his holistic approach to sustainable and contextually rich design.

Joan Borrell Ribas, BArch Architecture

 
 

 

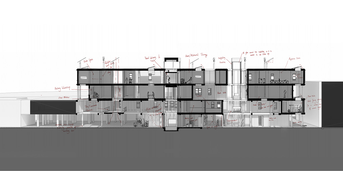
Cycle of Craft: A Living Furniture Factory

Reviving Timber Traditions and Community Life in Coventry

This Cradle to Cradle furniture factory in Coventry repurposes a building near the market, serving the public, factory workers, and apprentices. Embracing the "waste equals food," "use of renewable energies," and "respect diversity" principles, it demonstrates an endless cycle of production. The architecture, incorporating Cradle to Cradle (C2C) philosophy and critical regionalism, creates spaces for public engagement with furniture manufacturing. 

Reviving traditional timber crafting, the structure features modular tusk and tenon joints, allowing it to adapt to demand. The project reimagines the traditional factory, transforming workspaces into music venues, social spaces, and pubs after hours. The 1970s building, stripped to its concrete frame due to high embodied carbon, now supports a new timber structure. Holes in the concrete slab bring natural light to the ground floor, integrating the lively market atmosphere. 

Windows on upper floors showcase activity, enhancing ground-floor light and, at night, enlivening the urban environment.

Cycle of Craft: A Living Furniture Factory - isometric
 

 

Design work

 

 

Explore Architecture and Built Environment

exhibit!24

See more students' work.

Explore exhibit!24
Study with us

Find architecture courses.

View courses
Exceptional spaces

See where Architecture and Built Environment students learn.

View facilities
Architecture alumni

See what graduates do now.

Meet alumni