Triangle

 

Duckboards at Vikki Campus, University of Helsinki, on the Vanhankaupunginlahti Nature Reserve.

 

Isaac Mowbray

Isaac graduated from his BArch at the University of Nottingham in 2022 and then undertook a Part I placement in Oxfordshire at James Mackintosh Architects. Here, he found an interest in historic architecture and conservation practice, bringing a high level of attention to detail back to the Part II course.

Isaac Mowbray, MArch Architecture

 
 

 

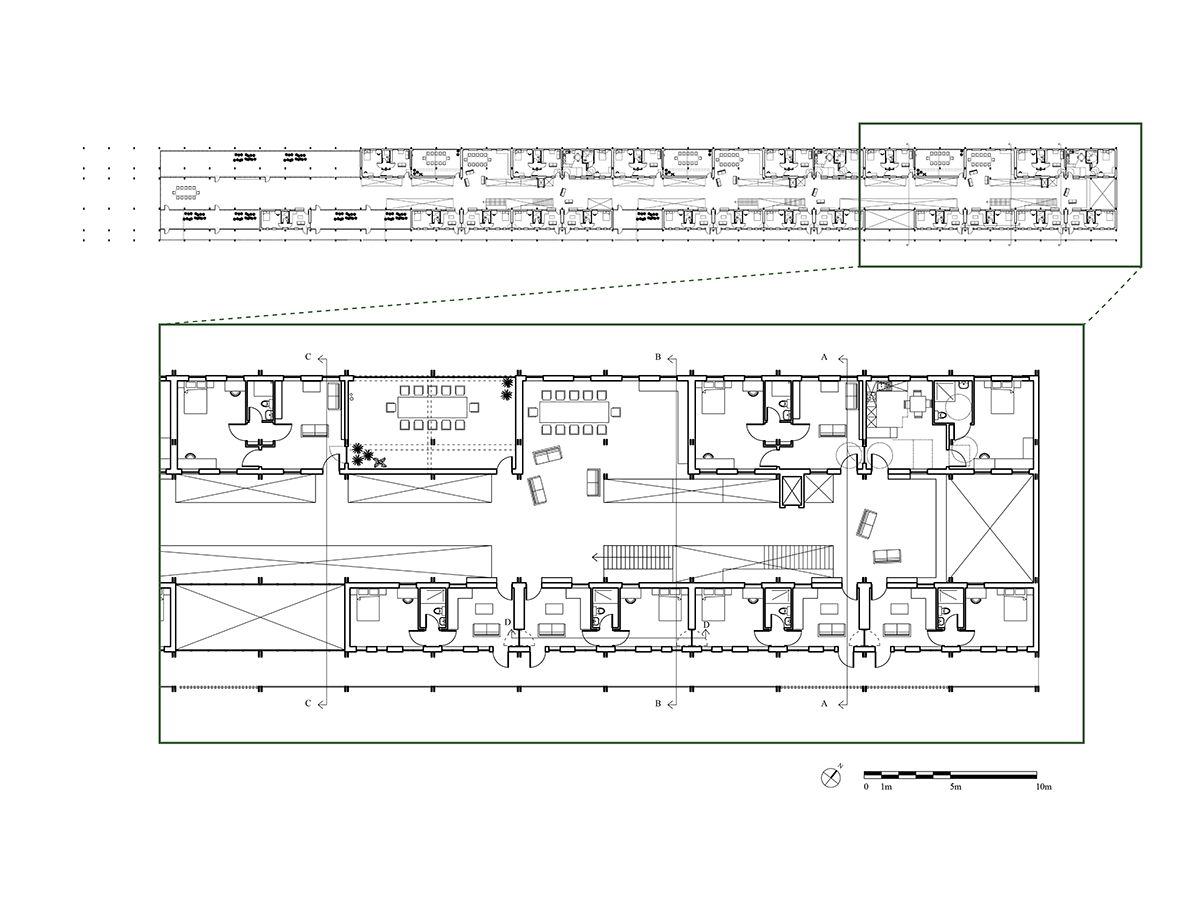
Duckboards

Using the S4 Integrated Design Approach by working closely with Architectural Environmental Engineers to minimise the embodied carbon and maximise passive energy efficiency, duckboards proposes a bold solution to cohousing which addresses the challenges set out in Gilles Clements' The Third Landscape Manifesto.

Duckboards are laid across wet and muddy ground to increase ease of access to nature. This project considers the location of Vikki Campus, University of Helsinki, as the only built area to impinge on the Vanhankaupunginlahti Nature Reserve south of the Viikintie road. The principle of shared living with minimal private space is applied within a flexible framework; how users claim and interact with the space will vary with time. Taking a linear form and acting as a 'staple' between the campus and the Vikki Arboretum, the project is laid across the site as a means of increasing access to nature.

View down living corridor
 

 

Design work

 

 

Explore Architecture and Built Environment

exhibit!24

See more students' work.

Explore exhibit!24
Study with us

Find architecture courses.

View courses
Exceptional spaces

See where Architecture and Built Environment students learn.

View facilities
Architecture alumni

See what graduates do now.

Meet alumni